販売物件検索

  • HOME
  • >
  • 物件検索

こんにちはゲスト
無料会員登録
メンバーログイン
来店予約申し込み

中古戸建
川西市新田3丁目
NEW

価格 月々支払例 間取 学校区 築年月 階数 面積
3,680万円 103,882 2LDK 多田小
多田中
2018/12 2階建 土地/120.62m²
建物/
物件検索画面へ戻る
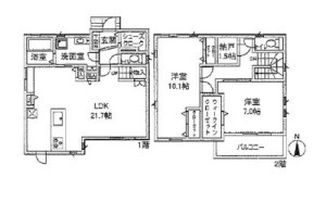
外観 間取図
間取図

この物件のお支払い例

頭金0円/ボーナス払い0円
3,680 万円
103,882
※全額借入、35年返済、変動金利1%の場合
この物件へのお問い合わせはコチラ
来場予約おお申し込みはコチラ

物件概要

物件種別 中古一戸建て
物件No. 61100
所在地 兵庫県川西市新田3丁目
小学校区 多田小学校 中学校区 多田中学校
土地面積 120.62m²(36.49坪) 建物面積
構造 木造 階数 地上2階
間取り 2LDK 築年月 2018年12月
駐車場 有  水道 公営
ガス 排水 下水
都市計画 市街化区域 用途地域 第一種低層住居専用
地目 宅地 土地権利 所有権
私道負担 地勢
建ぺい率 50% 容積率 100%
現況 引渡時期 相談 
交通 能勢電鉄妙見線平野駅から徒歩14分
接道状況
情報登録日 2026年04月09日 前回登録・更新日 2026年04月09日
取扱店舗 株式会社ネクサスジャパン
大阪府池田市神田2-6-25
店舗情報を見る

お電話でのお問い合わせ

ネクサスジャパン
受付時間/10時~19時
定休日/水曜日
スマートフォンの方は電話番号をタップしてみて!

兵庫県川西市新田3丁目
【物件No.】
61100
物件No.をお知らせください

自信を持ってお届け!スタッフいち押しオススメ物件
中古住宅

住所:川西市花屋敷
建物面積:非公開
土地面積:非公開
価格
非公開万円

頭金/ボーナス支払
0

月々返済
非公開

中古住宅

住所:川西市栄町
建物面積:非公開
土地面積:非公開
価格
非公開万円

頭金/ボーナス支払
0

月々返済
非公開


0800-222-6677
お問い合わせフォームはコチラ
来場予約はコチラ
無料メンバー登録はコチラ
2235 ご来店予約はコチラ
会員登録はコチラ
不動産売却
夢のマイホーム無料相談お家の相談窓口 あなたにピッタリのハウスメーカーや工務店をズバリご紹介します
詳細を見る