販売物件検索

  • HOME
  • >
  • 物件検索

こんにちはゲスト
無料会員登録
メンバーログイン
来店予約申し込み

中古戸建
宝塚市ふじが丘2

価格 月々支払例 間取 学校区 築年月 階数 面積
1,580万円 44,602 4DK 長尾台小
南ひばりガ丘中
1983/03 2階建 土地/229.83m²
建物/139.45m²
物件検索画面へ戻る
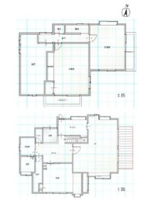
外観 間取図
間取図

この物件のお支払い例

頭金0円/ボーナス払い0円
1,580 万円
44,602
※全額借入、35年返済、変動金利1%の場合
この物件へのお問い合わせはコチラ
来場予約おお申し込みはコチラ

物件概要

物件種別 中古一戸建て
物件No. 58282
所在地 兵庫県宝塚市ふじが丘2
小学校区 長尾台小学校 中学校区 南ひばりガ丘中学校
土地面積 229.83m²(69.52坪) 建物面積 139.45m²(42.18坪)
構造 木造 階数 地上2階
間取り 4DK 築年月 1983年03月
駐車場 有  水道
ガス 排水
都市計画 市街化区域 用途地域 第一種低層住居専用
地目 宅地 土地権利 所有権
私道負担 地勢 平坦
建ぺい率 50% 容積率 100%
現況 居住中 引渡時期 相談 
交通 阪急宝塚本線雲雀丘花屋敷駅バス乗車13分、満願寺停徒歩7分
接道状況 北東側:幅員5m 
情報登録日 2025年10月18日 前回登録・更新日 2025年11月15日
取扱店舗 株式会社ネクサスジャパン
大阪府池田市神田2-6-25
店舗情報を見る

お電話でのお問い合わせ

ネクサスジャパン
受付時間/10時~19時
定休日/水曜日
スマートフォンの方は電話番号をタップしてみて!

兵庫県宝塚市ふじが丘2
【物件No.】
58282
物件No.をお知らせください

自信を持ってお届け!スタッフいち押しオススメ物件
中古住宅

住所:宝塚市御殿山
建物面積:非公開
土地面積:非公開
価格
非公開万円

頭金/ボーナス支払
0

月々返済
非公開

宝塚市塔の町103
中古住宅

住所:宝塚市塔の町
建物面積:101.34m²
土地面積:163.79m²
価格
1,680万円

頭金/ボーナス支払
0

月々返済
47,424

中古住宅

住所:宝塚市清荒神
建物面積:非公開
土地面積:非公開
価格
非公開万円

頭金/ボーナス支払
0

月々返済
非公開

中古住宅

住所:宝塚市野上
建物面積:非公開
土地面積:非公開
価格
非公開万円

頭金/ボーナス支払
0

月々返済
非公開


0800-222-6677
お問い合わせフォームはコチラ
来場予約はコチラ
無料メンバー登録はコチラ
1930 ご来店予約はコチラ
会員登録はコチラ
不動産売却
夢のマイホーム無料相談お家の相談窓口 あなたにピッタリのハウスメーカーや工務店をズバリご紹介します
詳細を見る