販売物件検索

  • HOME
  • >
  • 物件検索

こんにちはゲスト
無料会員登録
メンバーログイン
来店予約申し込み

中古戸建
尼崎市御園1丁目

価格 月々支払例 間取 学校区 築年月 階数 面積
4,199万円 118,532 3SLDK 園田小
園田中
2013/12 3階建 土地/82.65m²
建物/
物件検索画面へ戻る
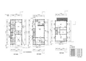
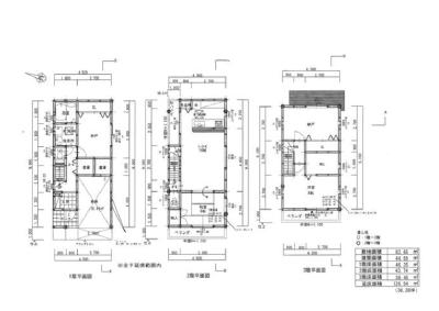
外観 間取図
間取図

この物件のお支払い例

頭金0円/ボーナス払い0円
4,199 万円
118,532
※全額借入、35年返済、変動金利1%の場合
この物件へのお問い合わせはコチラ
来場予約おお申し込みはコチラ

物件概要

物件種別 中古一戸建て
物件No. 55631
所在地 兵庫県尼崎市御園1丁目
小学校区 園田小学校 中学校区 園田中学校
土地面積 82.65m²(25.00坪) 建物面積
構造 木造 階数 地上3階
間取り 3SLDK 築年月 2013年12月
駐車場 有  水道
ガス 排水
都市計画 市街化区域 用途地域 第一種住居
地目 宅地 土地権利 所有権
私道負担 地勢
建ぺい率 60% 容積率 200%
現況 引渡時期 即時 
交通 JR福知山線塚口駅から徒歩12分
接道状況 西側:幅員5.8m 
備考 ☆令和7年11月末リフォーム完工予定
・クロス張替 ・フロアタイル上張 ・水栓、コンロ交換
・外壁一部塗装 ・ハウスクリーニング
情報登録日 2025年05月25日 前回登録・更新日 2025年11月15日
取扱店舗 株式会社ネクサスジャパン
大阪府池田市神田2-6-25
店舗情報を見る

お電話でのお問い合わせ

ネクサスジャパン
受付時間/10時~19時
定休日/水曜日
スマートフォンの方は電話番号をタップしてみて!

兵庫県尼崎市御園1丁目
【物件No.】
55631
物件No.をお知らせください

自信を持ってお届け!スタッフいち押しオススメ物件
中古住宅

住所:尼崎市東園田町
建物面積:非公開
土地面積:非公開
価格
非公開万円

頭金/ボーナス支払
0

月々返済
非公開

中古住宅

住所:尼崎市西難波町
建物面積:非公開
土地面積:非公開
価格
非公開万円

頭金/ボーナス支払
0

月々返済
非公開


0800-222-6677
お問い合わせフォームはコチラ
来場予約はコチラ
無料メンバー登録はコチラ
2067 ご来店予約はコチラ
会員登録はコチラ
不動産売却
夢のマイホーム無料相談お家の相談窓口 あなたにピッタリのハウスメーカーや工務店をズバリご紹介します
詳細を見る