販売物件検索

  • HOME
  • >
  • 物件検索

こんにちはゲスト
無料会員登録
メンバーログイン
来店予約申し込み

土地
豊中市宮山町3丁目

価格 月々支払例 学校区 面積
2,180万円 61,539 桜井谷小
第二中
土地/164.98m²
物件検索画面へ戻る
外観 間取図
区画図

この物件のお支払い例

頭金0円/ボーナス払い0円
2,180 万円
61,539
※全額借入、35年返済、変動金利1%の場合
この物件へのお問い合わせはコチラ
来場予約おお申し込みはコチラ

物件概要

物件種別 土地
物件No. 60845
所在地 大阪府豊中市宮山町3丁目
小学校区 桜井谷小学校 中学校区 第二中学校
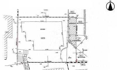
土地面積 164.98m²(49.91坪) 水道 公営
ガス 都市 排水 下水
都市計画 市街化区域 用途地域 第一種低層住居専用
地目 宅地 土地権利 所有権
私道負担 有 13.24m² 地勢
セットバック 建ぺい率 60%
容積率 150% 現況
引渡時期 相談     
交通 阪急箕面線桜井駅から徒歩14分
接道状況 東側:幅員4m 私道に8.2m接面
備考 ※新築時は土地造成が必要です。
※建築基準法43条2項2号許可対象地です。
情報登録日 2026年03月28日 前回登録・更新日 2026年03月28日
取扱店舗 株式会社ネクサスジャパン
大阪府池田市神田2-6-25
店舗情報を見る

お電話でのお問い合わせ

ネクサスジャパン
受付時間/10時~19時
定休日/水曜日
スマートフォンの方は電話番号をタップしてみて!

大阪府豊中市宮山町3丁目
【物件No.】
60845
物件No.をお知らせください

自信を持ってお届け!スタッフいち押しオススメ物件
豊中市庄内栄町4丁目
土地

住所:豊中市庄内栄町
坪単価:-
土地面積:72.20m²
価格
2,280万円

頭金/ボーナス支払
0

月々返済
64,362

土地

住所:豊中市庄内西町
坪単価:非公開
土地面積:非公開
価格
非公開万円

頭金/ボーナス支払
0

月々返済
非公開

土地

住所:豊中市上津島
坪単価:非公開
土地面積:非公開
価格
非公開万円

頭金/ボーナス支払
0

月々返済
非公開


0800-222-6677
お問い合わせフォームはコチラ
来場予約はコチラ
無料メンバー登録はコチラ
2194 ご来店予約はコチラ
会員登録はコチラ
不動産売却
夢のマイホーム無料相談お家の相談窓口 あなたにピッタリのハウスメーカーや工務店をズバリご紹介します
詳細を見る