販売物件検索

  • HOME
  • >
  • 物件検索

こんにちはゲスト
無料会員登録
メンバーログイン
来店予約申し込み

中古戸建
宝塚市大原野字南穴虫1

価格 月々支払例 間取 学校区 築年月 階数 面積
1,250万円 35,286 6DK 西谷小
西谷中
1974/02 2階建 土地/236.55m²
建物/118.63m²
物件検索画面へ戻る
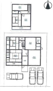
外観 間取図
間取図

この物件のお支払い例

頭金0円/ボーナス払い0円
1,250 万円
35,286
※全額借入、35年返済、変動金利1%の場合
この物件へのお問い合わせはコチラ
来場予約おお申し込みはコチラ

物件概要

物件種別 中古一戸建て
物件No. 54198
所在地 兵庫県宝塚市大原野字南穴虫1
小学校区 西谷小学校 中学校区 西谷中学校
土地面積 236.55m²(71.56坪) 建物面積 118.63m²(35.89坪)
構造 木造 階数 地上2階
間取り 6DK 築年月 1974年02月
駐車場 有  水道 公営
ガス プロパン 排水 汲取
都市計画 市街化区域 用途地域
地目 宅地 土地権利 所有権
私道負担 地勢 平坦
建ぺい率 容積率
現況 引渡時期 即時 
交通 JR福知山線武田尾駅バス乗車20分、よろづや停徒歩2分
接道状況 幅員4m 公道に12.7m接面
備考 ☆令和7年10月リフォーム済
・雨漏れ修繕 ・バルコニー防水工事 ・床下防蟻工事
※再建築不可
情報登録日 2026年04月09日 前回登録・更新日 2026年04月09日
取扱店舗 株式会社ネクサスジャパン
大阪府池田市神田2-6-25
店舗情報を見る

お電話でのお問い合わせ

ネクサスジャパン
受付時間/10時~19時
定休日/水曜日
スマートフォンの方は電話番号をタップしてみて!

兵庫県宝塚市大原野字南穴虫1
【物件No.】
54198
物件No.をお知らせください

自信を持ってお届け!スタッフいち押しオススメ物件
ガーデンスクエア宝塚中山
中古住宅

住所:宝塚市中筋山手
建物面積:-
土地面積:-
価格
1,180万円

頭金/ボーナス支払
0

月々返済
33,310

宝塚市花屋敷松が丘11
中古住宅

住所:宝塚市花屋敷松が丘
建物面積:-
土地面積:135.11m²
価格
1,290万円

頭金/ボーナス支払
0

月々返済
36,415

中古住宅

住所:宝塚市清荒神
建物面積:非公開
土地面積:非公開
価格
非公開万円

頭金/ボーナス支払
0

月々返済
非公開

中古住宅

住所:宝塚市光が丘
建物面積:非公開
土地面積:非公開
価格
非公開万円

頭金/ボーナス支払
0

月々返済
非公開


0800-222-6677
お問い合わせフォームはコチラ
来場予約はコチラ
無料メンバー登録はコチラ
2064 ご来店予約はコチラ
会員登録はコチラ
不動産売却
夢のマイホーム無料相談お家の相談窓口 あなたにピッタリのハウスメーカーや工務店をズバリご紹介します
詳細を見る