販売物件検索

  • HOME
  • >
  • 物件検索

こんにちはゲスト
無料会員登録
メンバーログイン
来店予約申し込み

新築戸建
豊中市北条町3丁目
NEW

価格 月々支払例 間取 学校区 築年月 階数 面積
3,080万円 86,944 3LDK 北条小
第十六中
2026/05 3階建 土地/43.96m²
建物/
物件検索画面へ戻る
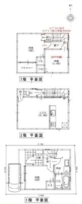
外観 間取図
間取図

この物件のお支払い例

頭金0円/ボーナス払い0円
3,080 万円
86,944
※全額借入、35年返済、変動金利1%の場合
この物件へのお問い合わせはコチラ
来場予約おお申し込みはコチラ

物件概要

物件種別 新築一戸建て
物件No. 60813
所在地 大阪府豊中市北条町3丁目
小学校区 北条小学校 中学校区 第十六中学校
土地面積 43.96m²(13.30坪) 建物面積
構造 木造 階数 地上3階
間取り 3LDK 築年月 2026年05月
駐車場 有  水道
ガス 排水
都市計画 市街化区域 用途地域 第一種中高層住居専用
地目 宅地 土地権利 所有権
私道負担 地勢
建築確認番号 建ぺい率 60%
容積率 200% 現況 未完成
引渡時期 相談     
交通 阪急宝塚本線服部天神駅から徒歩15分
接道状況 西側:幅員4.4m 
備考 ※別途必要200万円(税込)
(建築確認費、基本外構工事費、地盤調査保証費、耐震工事)
情報登録日 2026年03月28日 前回登録・更新日 2026年03月28日
取扱店舗 株式会社ネクサスジャパン
大阪府池田市神田2-6-25
店舗情報を見る

お電話でのお問い合わせ

ネクサスジャパン
受付時間/10時~19時
定休日/水曜日
スマートフォンの方は電話番号をタップしてみて!

大阪府豊中市北条町3丁目
【物件No.】
60813
物件No.をお知らせください

0800-222-6677
お問い合わせフォームはコチラ
来場予約はコチラ
無料メンバー登録はコチラ
2208 ご来店予約はコチラ
会員登録はコチラ
不動産売却
夢のマイホーム無料相談お家の相談窓口 あなたにピッタリのハウスメーカーや工務店をズバリご紹介します
詳細を見る