販売物件検索

  • HOME
  • >
  • 物件検索

こんにちはゲスト
無料会員登録
メンバーログイン
来店予約申し込み

中古マンション
エスリード伊丹南本町

価格 月々支払例 間取 学校区 築年月 階数 面積
4,690万円 132,392 3LDK 南小
南中
2004/01 10階建 専有/86.39m²
物件検索画面へ戻る
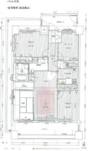
外観 間取図
間取図

この物件のお支払い例

頭金0円/ボーナス払い0円
4,690 万円
132,392
※全額借入、35年返済、変動金利1%の場合
この物件へのお問い合わせはコチラ
来場予約おお申し込みはコチラ

物件概要

物件種別 中古マンション
物件No. 60511
所在地 兵庫県伊丹市南本町7丁目
小学校区 南小学校 中学校区 南中学校
専有面積 壁芯86.39m²(26.13坪)
バルコニー面積 30.84m² バルコニー方面
構造 RC 階数 地上10階 所在階数 5階
間取り 3LDK 総戸数 83戸
管理人 日勤 管理形態 全部委託
管理会社 エスリード建物管理株式会社 施工会社 安藤建設株式会社
管理費 9,900円 修繕積立金 15,000円
駐車場 水道 公営
ガス 都市 排水 下水
築年月 2004年01月
用途地域 工業 土地権利 所有権
現況 居住中 引渡時期 期日指定 
交通 阪急伊丹線新伊丹駅から徒歩8分
情報登録日 2026年03月01日 前回登録・更新日 2026年03月13日
取扱店舗 株式会社ネクサスジャパン
大阪府池田市神田2-6-25
店舗情報を見る

お電話でのお問い合わせ

ネクサスジャパン
受付時間/10時~19時
定休日/水曜日
スマートフォンの方は電話番号をタップしてみて!

兵庫県伊丹市南本町7丁目
【物件No.】
60511
物件No.をお知らせください

自信を持ってお届け!スタッフいち押しオススメ物件
中古マンション

住所:伊丹市南町
専有面積:非公開
バルコニー面積:非公開
価格
非公開万円

頭金/ボーナス支払
0

月々返済
非公開


0800-222-6677
お問い合わせフォームはコチラ
来場予約はコチラ
無料メンバー登録はコチラ
2088 ご来店予約はコチラ
会員登録はコチラ
不動産売却
夢のマイホーム無料相談お家の相談窓口 あなたにピッタリのハウスメーカーや工務店をズバリご紹介します
詳細を見る