販売物件検索

  • HOME
  • >
  • 物件検索

こんにちはゲスト
無料会員登録
メンバーログイン
来店予約申し込み

中古マンション
豊中柴原シティハウス

価格 月々支払例 間取 学校区 築年月 階数 面積
3,890万円 109,810 3LDK 桜井谷小
第十三中
1992/03 6階建 専有/96.13m²
物件検索画面へ戻る
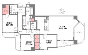
外観 間取図
間取図

この物件のお支払い例

頭金0円/ボーナス払い0円
3,890 万円
109,810
※全額借入、35年返済、変動金利1%の場合
この物件へのお問い合わせはコチラ
来場予約おお申し込みはコチラ

物件概要

物件種別 中古マンション
物件No. 58855
所在地 大阪府豊中市柴原町2丁目
小学校区 桜井谷小学校 中学校区 第十三中学校
専有面積 壁芯96.13m²(29.08坪)
バルコニー面積 バルコニー方面
構造 RC 階数 地上6階 所在階数 3階
間取り 3LDK 総戸数 18戸
管理人 日勤 管理形態 全部委託
管理会社 株式会社合人社計画研究所 施工会社 真柄建設株式会社
管理費 17,150円 修繕積立金 18,280円
駐車場 水道 公営
ガス 都市 排水 下水
築年月 1992年03月
用途地域 第一種中高層住居専用 土地権利 所有権
現況 引渡時期 相談 
交通 大阪モノレール本線柴原阪大前駅から徒歩8分
備考 ☆令和7年9月改装リフォーム済
・システムキッチン、温水洗浄便座付トイレ、
浴室ユニットバス、洗面化粧台新調
・クロス、フローリング張替
情報登録日 2025年11月24日 前回登録・更新日 2025年11月24日
取扱店舗 株式会社ネクサスジャパン
大阪府池田市神田2-6-25
店舗情報を見る

お電話でのお問い合わせ

ネクサスジャパン
受付時間/10時~19時
定休日/水曜日
スマートフォンの方は電話番号をタップしてみて!

大阪府豊中市柴原町2丁目
【物件No.】
58855
物件No.をお知らせください

自信を持ってお届け!スタッフいち押しオススメ物件
中古マンション

住所:豊中市西緑丘
専有面積:非公開
バルコニー面積:非公開
価格
非公開万円

頭金/ボーナス支払
0

月々返済
非公開

千里中央パークヒルズH棟
中古マンション

住所:豊中市上新田
専有面積:75.60m²
バルコニー面積:8.03m²
価格
3,980万円

頭金/ボーナス支払
0

月々返済
112,350

中古マンション

住所:豊中市上新田
専有面積:非公開
バルコニー面積:非公開
価格
非公開万円

頭金/ボーナス支払
0

月々返済
非公開

レジオン豊中・千里中央
中古マンション

住所:豊中市上新田
専有面積:64.03m²
バルコニー面積:9.87m²
価格
3,980万円

頭金/ボーナス支払
0

月々返済
112,350


0800-222-6677
お問い合わせフォームはコチラ
来場予約はコチラ
無料メンバー登録はコチラ
1908 ご来店予約はコチラ
会員登録はコチラ
不動産売却
夢のマイホーム無料相談お家の相談窓口 あなたにピッタリのハウスメーカーや工務店をズバリご紹介します
詳細を見る