こんにちはゲストさん

尼崎市大庄北5の詳細

尼崎市大庄北5丁目
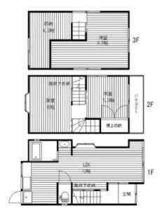
  • 間取図
価格 1,150万円 築年月 1966年04月
間取り 3SLDK 面積 49.52m²(14.98坪)
この物件のお支払い例
頭金0円&ボーナス払い0円
1,150万円

月々返済 32,463
※全額借入、35年返済、変動金利1%の場合

物件種別 中古一戸建て 物件No. 58231
所在地 兵庫県尼崎市大庄北5丁目
小学校 浜田小学校 中学校 大庄北中学校
土地面積 49.52m²(14.98坪) 建物面積
構造 木造 階数 地上3階
間取り 3SLDK 築年月 1966年04月
駐車場 水道 公営
ガス 都市 排水 下水
都市計画 市街化区域 用途地域 第一種住居
地目 宅地 土地権利 所有権
私道負担 有 9.5m² 地勢 平坦
建ぺい率 60% 容積率 200%
現況 引渡時期 相談 
交通 JR東海道本線立花駅から徒歩18分
接道状況 東側:幅員3.8m 私道に4.5m接面
備考 ※増築未登記部分有り(23.15㎡)
情報登録日 2025年10月18日 前回登録・更新日 2025年11月15日
取扱店舗 株式会社ネクサスジャパン
大阪府池田市神田2-6-25
店舗情報を見る
お電話でのお問い合わせ
ネクサスジャパン
受付時間/10時~19時 定休日/水曜日
兵庫県尼崎市大庄北5丁目
【物件No.】58231
物件No.をお知らせください
物件問合わせフォーム
注意事項
問合わせをされた方には、自動で確認メールを返信しております。メールアドレスの誤入力、携帯電話のドメイン指定受信などにより確認メールを受信出来ない場合がございます。
確認メールが届かない場合は、当社からの返信を受信出来ない可能性がございますので、お手数ですが、メール以外の連絡方法を追記の上、再度お問い合わせいただきますようお願い致します。迷惑メールフォルダなどに入っている場合もございますので、再度受信設定をご確認ください。
お客様情報入力
問合わせ内容 【必須】







※具体的なお問い合わせ内容、見学希望日時、希望条件などご記入ください
お名前 【必須】
例)山田太郎
電話番号(固定電話または携帯) 【必須】
※半角数字で市外局番からご記入ください。
例)0985-xx-xxxx
メールアドレス 【必須】
※半角英数字で@以下までご記入ください。
例)xxxxx@xxx.com
ご住所
購入希望時期